Horns Lane

Proposed development at Horns Lane, High Wycombe 

The Horns Lane site received an outline approval on 30 September 2022 for a development of up to 50 homes. Planning permission was granted for:

“Outline for up to 50 dwellings including details of the junction with Horns Lane (not internal roads) and associated highway works, with all matters (relating to appearance, landscaping, scale, layout and access) reserved.” 

Since then, SNG acquired the site and we are currently preparing the detailed plans required under the existing planning permission. Our purpose is to provide good, affordable homes that are the foundation for a better life - and our vision is thriving communities, over generations. 

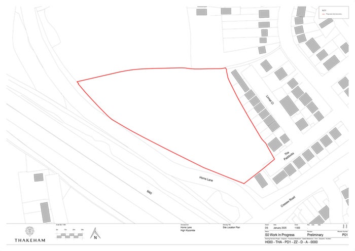
Site location plan

Horns Lane, Site location plan

Explore the Site Location Plan [PDF, 192KB] Opens in new window

We are working in partnership with Thakeham, an award-winning developer renowned for delivering high-quality, sustainable communities. 

The outline approval detailed above agreed the concept of the development. Together with Thakeham, we are now progressing detailed proposals, known as ‘Reserved Matters’, to complete the design and layout of the development. 

As part of our commitment to openness and community engagement, we are sharing our emerging plans ahead of submitting the Reserved Matters planning application to Buckinghamshire Council later this summer. Please find our proposed plans below: 

Masterplan

Horns Lane - Masterplan

View the Masterplan [PDF, 8MB] Opens in new window


Street scene visualisation

Horns Lane - Street scene

Discover the Concept Street scene visualisation [PDF, 14MB] Opens in new window

FAQs